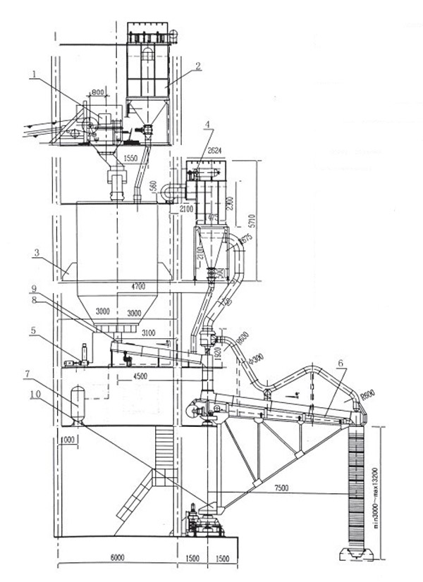
CSZ0150长江边散装船系统

南通奥普机械欢迎您的来访!

     

     

    本系统是从仓侧将粉状物料自动输送至散装船的设备。
    本机具有料位控制灵敏、出料流畅阻力小等优点。
    该产品还可用于建材系统,其它行业以及冶金、煤炭化工部门粉粒物料装车、装船。

    1、CSZ-01库顶进料系统
    2、CSZ-02库顶收尘系统
    3、CSZ-03计量系统
    4、CSZ-04船用收尘器系统
    5、SCZ-05罗茨风机
    6、CSZ-06船用散装机
    7、CSZ-07压缩空气管路系统
    8、CSZ-08罗茨风机至仓管路
    9、CSZ-09卸料系统
    10、CSZ-10旋转机构

Close